27/06/2022
Você, profissional que utiliza o AutoCAD, já parou para pensar que pode não estar extraindo o máximo de desempenho e produtividade que este software pode oferecer? São erros comuns que podem acabar tendo um efeito negativo no seu dia a dia e que podem ser resolvidos de maneira simples.
A produtividade e eficiência estão fortemente ligadas com a forma em que o usuário interage com o software. Por exemplo, quando você entra em um ambiente de trabalho de arquitetos, designers e engenheiros e ouvir muitos “clicks” não significa que estes profissionais estão sendo produtivos. Na verdade, os melhores trabalhos no AutoCAD são realizados com poucos cliques.
Nada pior do que chegar ao escritório, ter uma agenda cheia de afazeres e projetos para concluir e encontrar um problema com a sua ferramenta de trabalho. Nesse sentido o dia acaba se tornando exaustivo mesmo antes de começar de fato. Desse modo, o conhecimento pleno do AutoCAD eleva sua produtividade a níveis que você nunca imaginaria e para que isso possa ocorrer é preciso reduzir os erros e dinamizar os processos.

Por meio disso, hoje abordaremos os erros mais cometidos pelos usuários e os erros/“bugs” mais comuns do AutoCAD e indicar como resolvê-los de forma fácil e rápida.
Ficou curioso em saber quais são estes erros? Então vamos lá!
É um costume de trabalhar muito comum em usuários novos do AutoCAD, pois sempre que necessitam ativar algum comando, selecionam clicando no devido botão localizado na barra superior chamada de Ribbon (menu). Porém, este tipo de ação fará com que você perca muito tempo em busca do ícone do botão desejado. Além disso, pode acontecer de às vezes você não encontrar o comando no menu e se irritar com a tarefa.

É surpreendente o tempo e a praticidade que você economiza ao digitar o comando, ou suas iniciais, e obter o mesmo resultado de forma prática. Pensando nisso, há uma lista com os principais comandos do AutoCAD para que você possa utilizá-lo como uma cola e empregar sempre que precisar.

O model viewports é uma função que possibilita com que o usuário trabalhe com a divisão da tela por meio de viewports diretamente no model (espaço de modelação). Nesse sentido, um erro comum cometido por muitos, é não saber utilizar esta função e isso acarreta em uma falta de produtividade considerável dependendo do projeto em que se esteja trabalhando no momento.
Um belo exemplo é a possibilidade de se trabalhar com uma planta de arquitetura e um corte no mesmo desenho (model). Devido ao viewports o usuário pode dividir a tela no meio para que de um lado se tenha a planta e do outro um corte específico. Além desse exemplo, há inúmeras formas de dividir a tela para se adequar a cada situação de trabalho. Na aba View do Ribbon, escolha a opção “Viewport Configuration”, dentro dela você irá encontrar os diversos tipos de divisão que podem ser utilizadas.

No mundo dos usuários do AutoCAD, considera-se uma falha grave o fato de não poderem utilizar o botão direito para repetir o último comando, o que aumentaria a produtividade. Desse modo, ao repetir o último comando de forma mais prática e rápida, o seu trabalho não se torna cansativo e assim, você economiza energia, pois precisará de menos cliques para chegar ao mesmo resultado.
Para realizar essa configuração você deve ir à janela de opções (Comando OP) e na aba “User Preferences” clicar no botão “Right-click Customizations”, após você irá selecionar a opção “Turn on time-sensitive right-click”. Em seguida na opção “Longer click duration”, regule para 250 e por fim, na parte “Edit Mode” deixe habilitada a função “Shortcut Menu” e confirme com OK em todas as janelas.
Abaixo segue um passo a passo para realizar esta configuração:


Em vista disso, essa configuração irá fazer com que o botão direito ao ser clicado, sempre repita o último comando executado pelo usuário e ao ser clicado com um “click” mais demorado, ele abrirá um menu. Além disso, se você selecionar um objeto e clicar com o botão direito, irá abrir um menu daquele objeto que foi selecionado.
E aí, achou legal está informação? Experimente esta opção e poderá ver como seu trabalho irá render muito mais.
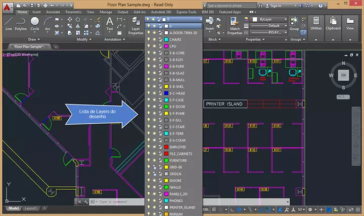
A função dos layers foi desenvolvida para deixar os desenhos mais organizados. Nesse sentido, quando se fala de organização de dados e projetos, não se pode pensar em outra coisa a não ser ganho ou perda de produtividade.

Portanto, quem não separa por layers os diversos tipos de assuntos que envolvem o desenho, acabam por perder tempo ao editar propriedades como cor, tamanho do texto e estilo de linhas, além de ter dificuldades para selecionar elementos desejados. Assim, para quem é cadista profissional, vai ficar abismado ao ver um desenho totalmente feito em apenas um layer.
Você pode imaginar que se não fossem os layers os usuários teriam que separar tudo para que pudesse dar continuidade a um trabalho. Em outras palavras, isso pode te fazer perder dinheiro e confiabilidade.
Outro erro muito comum de usuários do AutoCAD, é a prática de desenhar toda a prancha no Model o que acarreta em um baixo nível de produtividade. Ao passo que, desde a versão do AutoCAD 2000 foi desenvolvido um conceito totalmente novo de se desenhar as pranchas para impressão.
Desse modo, a aba Layout permite que nesse ambiente seja elaborada os traços das pranchas, como bordas, área útil, carimbo e informações adicionais de forma que o desenho se adeque a qualquer escala sem que seja necessário escalar o projeto todo antes de imprimir (plotagem).

Atualmente, nas últimas versões, esse quesito encontra-se mais avançado, ao passo que há ferramentas que dão inúmeras opções de plotagem. Entretanto, apesar disso, existem muitos trabalhos que são feitos em model dificultando a plotagem e como consequência acaba por atrasar o tempo de vários colaboradores envolvidos naquele projeto.
Um dos principais erros do AutoCAD é a tecla F8 que quando acionada congela o seu software. Este bug está relacionado ao sistema operacional Windows 10 e temos algumas opções para resolver o erro.
Segundo a própria Autodesk, desenvolvedora do software, este erro acontece apenas com usuários do Windows 10, mais precisamente no Windows 10 anniversary (ou Redstone 1 update). Portanto, para solucionar este problema (e outros) a Autodesk lançou o Hotfix, que nada mais são que reparos específicos focados a uma determinada função ou ferramenta do AutoCAD.
Além do Hotpix, para o problema do F8 “congelante” recomendamos instalar o Service Pack dos Windows (pacote de correções) que além deste problema específico, vai resolver outros erros que podem surgir no seu AutoCAD.
Caso o usuário não tenha tempo para instalar as atualizações ou necessite de uma solução rápida e não tenha tempo disponível para parar seus projetos, podemos recorrer a um comando do próprio AutoCAD para solucionar de forma provisório o erro do F8.
Quando ocorrer da tela congelar, a primeira coisa a se fazer é mover o mouse para fora da tela e dar um clique, assim o AutoCAD irá descongelar.
Em seguida digite o comando TEMPOVERRIDES e pressione Enter.
Este comando é uma variável de sistema, que busca controlar a função de manter uma tecla pressionada temporariamente, e desse modo, quando altera-se o seu valor, ela impede que o congelamento da tecla F8 aconteça, sem causar grandes impactos ao seu projeto.
Após, altere o valor para 0 e pressione Enter.
Em seguida o AutoCAD não irá mais ficar congelado. No entanto, assim que possível, busque instalar o Service Pack, para evitar eventuais problemas.
Outro erro que pode acontecer com o AutoCAD, é quando o usuário trabalha com um arquivo do CAD que fica muito pesado, e então, o software começa a dar alguns bugs e um deles é o fato de deformar as linhas de tudo que não é reto no projeto, como em um desenho de vaso.
Contudo, para resolver este erro, basta uma ação bem simples. Primeiramente você deve digitar o comando REGEN ou a letra R, e após pressionar a tecla ENTER. Dessa forma, o erro será corrigido e suas linhas voltaram a ficarem retilíneas.
Desenvolvedores referem estes dois erros do AutoCAD tanto o “0X0040” e o “800C0005” como sendo um erro de tempo de execução do software. Quando se trata de software como o AutoCAD, os engenheiros e arquitetos podem usar uma variedade de ferramentas para tentar eliminar esses bugs o mais rápido possível.
Devido a estes erros, a Autodesk Inc. corrige os erros e preparou alguns arquivos de atualização para download no seu site. Assim, basta o usuário fazer o download de um pacote de atualização do AutoCAD para resolver os erros 800C005 e 0X0040, além de quaisquer outras mensagens de erro relatadas referentes a atualizações.
Geralmente, a corrupção de arquivos relacionados ao software causa esses erros no AutoCAD, ou, em alguns casos, a remoção acidental ou maliciosa do arquivo é a causa. Assim, caso o pacote de atualizações não gera nenhum efeito, normalmente, reinstalar uma nova versão do AutoCAD irá reparar o problema que gera estes erros.
Como vimos anteriormente, existem alguns erros comuns do software e também cometidos pelos usuários do AutoCAD conhecidos como cadistas e que podem ser facilmente resolvidos. Além disso, corrigir estes erros irá fazer com que você ganhe mais em desempenho, praticidade e qualidade nos seus trabalhos e assim, conquistar os seus clientes.
E aí, gostou de saber quais são os erros mais comuns do AutoCAD e como resolvê-los?
Para saber mais, entre em contato com um de nossos colaboradores e projete a workstation perfeita para a sua necessidade profissional.
Soluções customizadas de hardware para sua necessidade.
FALAR COM ESPECIALISTA